探讨:国内外各品牌螺杆空压机油气分离罐特性
时间:2018-08-13 17:28
来源:DENAIR
作者:denair
点击:次
喷油螺杆空压机排气含油量是螺杆压缩机大多数使用者比较关心的主要指标之一,如何达到螺杆空压机排气含油量小于等于3mg/m3,的确需要对油气分离罐油气分离机理进行长期的试验研究,以便达到更佳油气分离效果和提高油气分离滤芯的使用寿命。
小编总结记录国内外各知名品牌螺杆压缩机油气分离罐结构型式,并对其进行研究分析,供压缩机业内技术人员借鉴。
在21世纪初,喷油螺杆空压机油气分离芯通常采用德国“MANN”品牌的油气分离滤芯,装机运行一段时间后有时会发现压缩空气中含油量偏高的现象,经过长期观察发现原来是油气分离罐设计不合理所致。
众所周知,喷油螺杆空压机油气分离的机理,一是利用油气分离罐将油气混合的压缩空气进行离心和碰撞从而使大颗粒油滴分离(称之为机械分离);二是通过油气分离芯中的纤维将细小的油滴进行拦截分离。经多年研究和试验发现,喷油螺杆空压机通过油气分离罐的机械分离必须去掉95%以上的油滴,而剩余的5%有大部分是细小油滴,少部分是油雾,细小油滴则由油气分离滤芯来进行分离,少部分油雾是很难分离的只能随压缩空气跑掉。如何提高95%以上的分离效果,其重要的因素就是油气分离罐内机械分离型式和压缩空气在罐内的线速度。
油气分离罐结构型式
现将收集到的15种喷油螺杆空压机油气分离罐内的机械分离型式,提供给大家以便在今后的设计中参考。
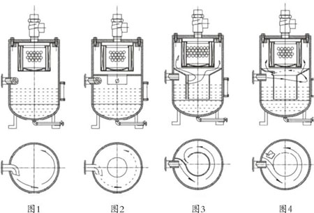
1.英格索兰公司喷油螺杆空压机机型

图1~4均为英格索兰公司生产的喷油螺杆空气压缩机机型,是在不同年代中油气分离罐内使用的各种机械分离型式。
图1为20世纪70年代初英格索兰公司在移动式螺杆空压机中油气分离罐内使用的机械分离型式。图2为20世纪70年代中期英格索兰公司在固定螺杆空压机中油气分离罐内使用的分离型式,此种进气口为切向加中孔挡板式。
图3为20世纪80年代初、中期英格索兰公司在产品上进行了第3次设计更新,它采用了“向”字形的设计,其目的是延长分离路线形成降速沉降法,侧进侧出,油气分离芯采用了折叠式,以EP100、EP200机型为代表,在国内市场上更为常见,数量更多。
图4是20世纪90年代初英格索兰公司在其螺杆空压机主力机型上使用的机械分离型式,它除采用了原有的降速沉降法以外,还采用了上排气再分离的型式,此种方法分离效果更好。
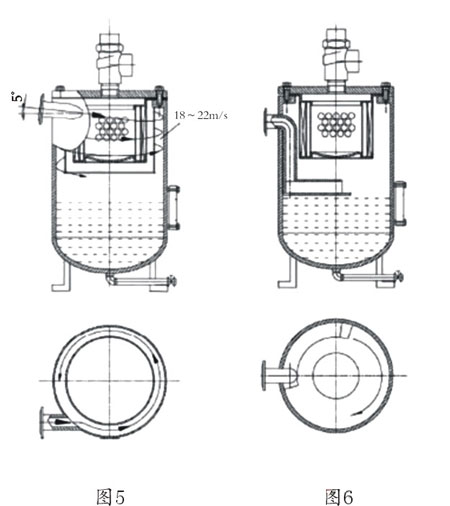
2.阿特拉斯·科普柯公司螺杆空压机油气分离罐

图5是阿特拉斯·科普柯公司螺杆空压机油气分离罐切向离心分离的型式,此型式也是国内螺杆压缩机生产厂商用的更多的油气分离型式,但国内厂商设计的油气分离罐与阿特拉斯·科普柯公司设计的油气分离罐比较起来有4点不同之处:
(1)同等容积流量的油气分离罐体积大于阿特拉斯·科普柯油气分离罐2~2.5倍;
(2)进气口没有倾斜角,而阿特拉斯·科普柯有5毅的倾斜角,可形成螺旋切向流动,便于油气离心分离;
(3)国内油气切向分离速度低,而阿特拉斯·科普柯的油气切向线速度是18~22m/s,经试验在此切向线速度范围内,油气分离效果更佳;
(4)国内厂商设计的油气分离罐储油量大于阿特拉斯·科普柯公司产品的储油量。
从上述4点来看,我们的设计有许多不足之处,同等气量的油气分离罐体积大、成本高,更大的差距在于国内生产厂商的设计人员许多都不知道所采用的螺杆机机头,每产1m3的空气所需润滑油循环量;而依据阿特拉斯·科普柯提供的资料显示阿特拉斯·科普柯生产的螺杆机机头每产1m3的空气润滑油循环量为9L/m3,因此阿特拉斯·科普柯公司设计的油气分离罐体积小,成本也就低,其设计的油气分离滤芯尺寸都小于其它品牌的油气分离滤芯。
3.寿力公司螺杆空压机油气分离罐
图6为寿力公司螺杆空压机的油气分离型式,它为下沉离心式机械分离,油气混合气通过管道将气体引入油气分离罐下半部距液面30~50mm,其中管道的下水平导向板长度长于上水平导向板50mm,以防止气流带动液面被搅拌,形成二次气带油,此类分离型式的特点是油气混合气通过离心碰撞后,大颗粒的油滴下沉,小颗粒的油雾上升由油气分离滤芯进行分离,另外寿力公司使用的润滑油为闪点比较高的合成油和硅基油,这样使得润滑油很难形成油蒸气,从而也降低了压缩空气中的含油量。
4.康普艾公司油气分离罐

图7、图8为康普艾公司典型的底部喷吹式油气分离型式,它依靠油气分离滤芯底部凹面的圆弧使含有油气混合气的气流通过碰击,从而使得大颗粒油滴以自重方式下降,小颗粒油雾待油气分离滤芯进行分离,为延长分离距离,增加了反吹罩,反吹罩的深度延长了机械分离距离的长度,此类分离型式要求滤芯底部凹面的圆弧要设计的恰到好处,否则分离效果很难保证。
5.日本神钢油气分离罐

图9为日本神钢20世纪70年代末出产的油气分离罐的型式,它将螺杆机机头立着埋入油气分离罐内,油气分离滤芯安装在螺杆机机头出风口的背面,并采用了内进气油气分离滤芯,此机型在当时是较为先进的,噪声相当于室内柜式空调机组的声音,而且埋入式机头的设计,也是一种新型的降噪理念,在当时进口机型中更为先进,噪声更小,此种机械分离形式采用了罐体喷吹双向反流体流动型式,使机械反吹方向距离更长,大油滴分离更彻底,此种机型基本在3m3/min以下,体积显的更小,还可与冷冻式干燥器拼装成一体机。
6.台湾天鹅油气分离罐

图10为台湾天鹅牌螺杆压缩机的油气分离型式,立式油气分离罐,切向分离,油气分离芯采用立式内进气旋装油气分离芯,在滤芯下部有一个回油单压阀可与进气端连接使油气分离滤芯分离出来的油重新回到负压段,进入主机继续循环使用,特点回油彻底通畅,调整螺纹联接尺寸可保证消耗品市场利润不被丢失,此种型式属于切向旋风的机械分离型式,结构简单,成本低,分离芯更换简便。

图11、图12均为T字型卧式机械分离,采用立式内进气油气分离芯,台湾力霸和向阳均采用此款型式,图11和图12为改型版,机械分离采用喷吹碰撞加长距离迂回的降速沉降的型式,图12为加高滤芯安装距离,加大分离后油的储量,设计了2个二次出油口,降低了二次回油过多造成被压缩空气吹走的可能。
图13为T字型卧式机械分离,采用喷吹碰撞加长距离迂回的降速沉降的机械分离型式,采用立式外进气油气分离滤芯,适合于较大流量的机型,此种类型的分离型式,可较好的降低成本,结构紧凑。
图14为T字型卧式机械分离,均采用水平喷吹碰撞加长距离迂回的降速沉降法,此种型式采用了立式倒装旋装外置油气分离滤芯,螺杆机头、油气分离滤芯均安装在卧式油气分离罐的上侧,此种型式以台湾复盛为代表传入大陆,被国内企业大力仿造,广为流行。

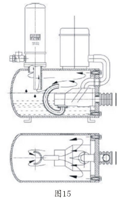
图15为螺杆机机头水平放置在卧式油气分离罐内,排气管像英文字母大写G的形状伸出油面,此种结构型式有较好的降噪功能和冷却螺杆机头的功能,油气分离效果与图14型式差不多。
结论
从上述15种类型的油气分离罐中我们看出,无论采用何种型式,都是想方设法将油气混合气中的油,在油气分离罐内与压缩空气尽量多的分离出来,以便减轻油气分离芯的分离负担,从而减少螺杆压缩机排气含油量。除此之外润滑油的高闪点也是非常重要的,它避免了润滑油在高温时产生大量的油蒸气,油蒸气的颗粒非常小,很难被油气分离滤芯所拦截。跑掉的油和油蒸气会随着压缩空气进入管道系统中,从而造成油污染,严重时会使吸附式干燥机中的吸附剂失效,油和油蒸气随着压缩空气跑到用户生产线上造成更大的损失。如何减少甚至除掉喷油螺杆空气压缩机的排气含油量在该行业中是比较棘手的问题。
日韩不卡免费视频无油空压机,百分百无油,螺杆空压机拥有核心主机制造技术,一流的加工检测平台,为您提供高效稳定、节能环保的无油空压机产品。厂家直销,全国联保。售后服务更加方便快捷。如果您有对无油空压机的需求或想了解更多关于无油空压机产品的信息,欢迎留言咨询或拨打日韩不卡免费视频全国客服热线:400-777-0802!
- 上一篇:浅谈:空压机物联网信息安全的重要性
- 下一篇:水冷型空压机一旦缺水的后果
首页




沪公网安备 31011602002252号